前面道路6m以上 2沿線以上利用可 駐車場(車種による) システムキッチン オープンキッチン 対面式キッチン 食器洗乾燥機 浄水器 シャッター雨戸 Low-E複層ガラス パントリー 浴室暖房 浴室乾燥機 バストイレ別 トイレ2ヶ所 温水洗浄便座 室内洗濯機置場 シャワー付き洗面化粧台 収納 全居室収納スペース 床下収納 洗面室収納 照明器具 ダウンライト 2面採光 TVインターホン LDK15帖以上 24時間換気システム バルコニー 宅配ボックス 乾太くん 省エネラベル 小学校徒歩10分以内 スーパー徒歩10分以内 整備された歩道 都市ガス
建物写真
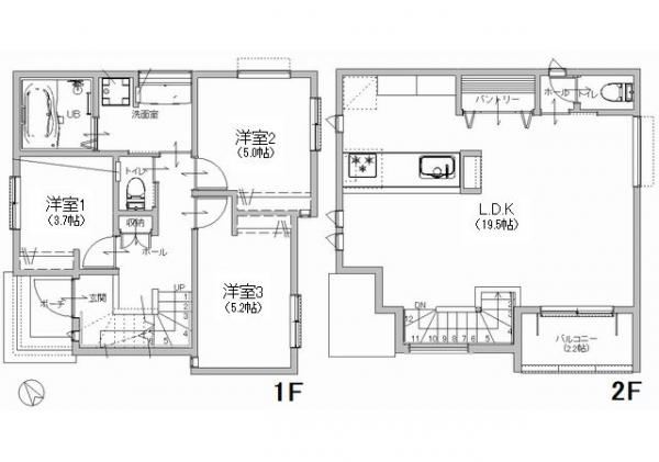
区画図・間取り図
設備仕様
その他画像:三面鏡付き洗面化粧台 洗面化粧台は、三面鏡付きタイプのものを採用。洗面台は広めで使いやすく、お手入れもラクラク。鏡裏は収納なので、散らかりがちなコスメ類もスッキリ片付きます。機能性と美しさを兼ねたこのスペースから、爽やかな一日がはじまります。
周辺環境
会員専用の便利な機能
この物件のお支払例
頭金 0円
ボーナス払い 0円
価格
4,780万円
支払例(月々)
122,924円
- 上記支払合計に含まれない月額費用がある場合がございます。
- 上記支払例の借入条件:変動金利0.445%(2.03%優遇)、借入総額4,780万円、借入期間35年
- 三井住友信託銀行「家計応援プラン」ご利用の場合。「家計応援プラン」の詳細はコチラ
- 上記金利には一定の条件が必要になります。
勤務地からの交通機能
- ご登録された勤務地「五反田」駅まで
所要時間
1時間
(最寄JR南武線「小田栄」駅利用) - ご登録された勤務地「五反田」駅まで
所要時間
31分
(最寄JR京浜東北・根岸線「川崎」駅利用)
物件基本情報
- 所在地
- 横浜市泉区上飯田町
- 価格
- 4480 ・ 4880万円(各税込)
- 交通
-
相模鉄道いずみ野線「いずみ中央」駅 徒歩15分
小田急江ノ島線「長後」駅
バス停 児童公園前 乗車8分 停歩5分 - 間取り
- 3LDK
- 土地面積
- 100.92・125.72m2
- 建物面積
- 79.49・93.15m2
- 築年月
- 2026/05
- 販売数
- 2 総区画数:2
物件詳細情報
- 接道状況
-
角地
南西側6.0m
北西側6.0m
南西側6.1m
- 幅員
- 6.0m ~ 6.1m
- 道路舗装
- アスファルト舗装
- 構造規模
- 木造 地上2階建て
- 土地権利
- 所有権
- 建ぺい率
- 40%
- 容積率
- 80%
- 用途地域
- 第一種低層住居専用
- 引渡し時期
- 2026/06 下旬
- 備考
- 景観法、宅地造成及び特定盛土等規制法、 最低敷地面積125平米:1号棟は許可を要する用途地域:一部第1種低層住居専用地域、建ぺい率:50% 容積率:80%
- 主たる設備
- 公営水道,本下水,都市ガス
- 設備
- トイレ2ヶ所,浴室乾燥機,システムキッチン,浄水器,床下収納,洗髪洗面化粧台,複層ガラス
- 建築確認番号
- 第2025SBC-確01978H号他
- 駐車スペース
- カースペース
- 現況
- 未完成
- 情報公開日
- 2025/10/29
- 情報有効期限
- 2026/06/12
- 取引条件有効期限
- 2026/05/27
- 次回更新予定日
- 2026/05/27
- 取引形態
- 媒介
- 物件番号
- A0136278



