フリープラン対応物件、整形地、2沿線以上利用可、都市ガス、上水道、下水道、電気、始発駅、急行停車駅
建物写真
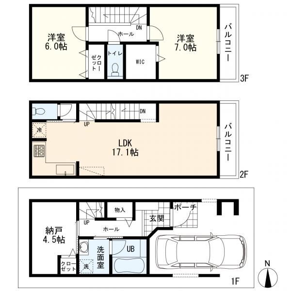
区画図・間取り図
周辺環境
会員専用の便利な機能
この物件のお支払例
頭金 0円
ボーナス払い 0円
価格
4,780万円
支払例(月々)
122,924円
- 上記支払合計に含まれない月額費用がある場合がございます。
- 上記支払例の借入条件:変動金利0.445%(2.03%優遇)、借入総額4,780万円、借入期間35年
- 三井住友信託銀行「家計応援プラン」ご利用の場合。「家計応援プラン」の詳細はコチラ
- 上記金利には一定の条件が必要になります。
勤務地からの交通機能
- ご登録された勤務地「五反田」駅まで
所要時間
1時間
(最寄JR南武線「小田栄」駅利用) - ご登録された勤務地「五反田」駅まで
所要時間
31分
(最寄JR京浜東北・根岸線「川崎」駅利用)
物件基本情報
- 所在地
- 藤沢市弥勒寺1丁目
- 土地価格
- 3480 万円
- 交通
-
東海道本線「藤沢」駅 徒歩14分
小田急江ノ島線「藤沢」駅 徒歩14分
- 土地面積
- 55.59m2
- 地目
- 宅地
物件詳細情報
- 接道状況
-
東側4.9m
- 建ぺい率
- 60%
- 容積率
- 196%
- 用途地域
- 第一種住居
- 引渡し時期
- 相談
- 備考
- 土地売買契約締結後、3か月以内に売主又は売主の指定する建築業者と建物の建築請負契約が締結されることを条件として販売します。この期間内に建物の建築請負契約が締結されなかった場合には、土地売買契約は白紙となり、受領した手付金等は、全額無条件で返還いたします。 準防火地域、特定都市河川浸水被害対策法、景観法、宅地造成及び特定盛土等規制法
- 主たる設備
- 公営水道,本下水,都市ガス
- 設備
- 電気
- 現況
- 更地渡し
- 情報公開日
- 2026/04/03
- 情報有効期限
- 2026/05/14
- 取引条件有効期限
- 2026/04/28
- 次回更新予定日
- 2026/04/28
- 取引形態
- 媒介
- 物件番号
- A0141649
現地案内図
閲覧履歴
人気物件ランキング
当社独占物件・店長おすすめ
現在 184 件
値下げ物件情報
現在 551 件
写真掲載が豊富な物件
現在 150 件



