閑静な住宅地、市街地が近い、2沿線以上利用可、整備された歩道、小学校徒歩10分以内、スーパー徒歩10分以内、通風良好、陽当り良好、電気、下水道、上水道、都市ガス、食器洗乾燥機、対面式キッチン、システムキッチン、給湯、省エネ給湯器、浴室乾燥機、浴室暖房、オートバス、パウダールーム、独立洗面台、シャワー付き洗面化粧台、室内洗濯機置場、温水洗浄便座、タンクレストイレ(2F)、収納、床下収納、照明器具、24時間換気システム、シャッター雨戸、バルコニー、スマートキー、宅配ボックス、TVインターホン、2面採光、フローリング、年内入居可、省エネラベル、2階建、フラット35適合証明書、LDK18帖以上、全居室フローリング、シャワー、全居室収納スペース、人感センサーライト、リビングイン階段、低層住居専用地域、トイレ2ヶ所
建物写真
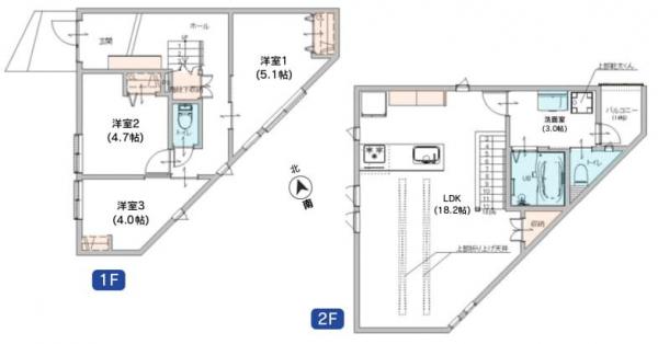
区画図・間取り図
設備仕様
周辺環境
会員専用の便利な機能
この物件のお支払例
頭金 0円
ボーナス払い 0円
価格
4,780万円
支払例(月々)
122,924円
- 上記支払合計に含まれない月額費用がある場合がございます。
- 上記支払例の借入条件:変動金利0.445%(2.03%優遇)、借入総額4,780万円、借入期間35年
- 三井住友信託銀行「家計応援プラン」ご利用の場合。「家計応援プラン」の詳細はコチラ
- 上記金利には一定の条件が必要になります。
勤務地からの交通機能
- ご登録された勤務地「五反田」駅まで
所要時間
1時間
(最寄JR南武線「小田栄」駅利用) - ご登録された勤務地「五反田」駅まで
所要時間
31分
(最寄JR京浜東北・根岸線「川崎」駅利用)
物件基本情報
- 所在地
- 横浜市神奈川区三ツ沢東町
- 価格
- 6480 万円(税込)
- 交通
-
横浜市ブルーライン「三ッ沢下町」駅 徒歩4分
東急東横線「反町」駅 徒歩12分
- 間取り
- 3LDK
- 土地面積
- 129.58m2
- 建物面積
- 84.25m2(地下車庫面積10.80m2含)
- 築年月
- 2026/08
物件詳細情報
- 接道状況
-
北東側4.0m
- 構造規模
- 木造 地上2階建て
- 土地権利
- 所有権
- 建ぺい率
- 50%
- 容積率
- 100%
- 用途地域
- 第一種低層住居専用
- 引渡し時期
- 2026/08 下旬
- 備考
- 景観法、宅地造成工事規制区域、地下車庫面積別途10.8m2有、土地面積に通路面積約4.46m2含む
- 主たる設備
- 公営水道,本下水,都市ガス
- 設備
- トイレ2ヶ所,浴室乾燥機,システムキッチン,床下収納,洗髪洗面化粧台
- 建築確認番号
- 第2025SBC-確02859H号
- 駐車スペース
- カースペース
- 現況
- 未完成
- 情報公開日
- 2026/03/12
- 情報有効期限
- 2026/06/05
- 取引条件有効期限
- 2026/05/20
- 次回更新予定日
- 2026/05/20
- 取引形態
- 媒介
- 物件番号
- D0140829
現地案内図
閲覧履歴
人気物件ランキング
当社独占物件・店長おすすめ
現在 170 件
値下げ物件情報
現在 472 件
写真掲載が豊富な物件
現在 135 件



