床暖房 ウォークインクローゼット 2面以上バルコニー LDK20帖以上 2沿線以上利用可 ビルトインガレージ EV車充電設備 宅配ボックス 食器洗乾燥機 対面式キッチン システムキッチン 浄水器 省エネ給湯器 浴室に窓 浴室暖房 浴室乾燥機 バス1坪以上 トイレ2ヶ所 温水洗浄便座 全居室収納スペース 複層ガラス Low-Eガラス ダブルロックドア 耐震構造 制震構造 高気密高断熱住宅 3階建以上 市街地が近い 整備された歩道 スーパー徒歩10分以内 小学校徒歩10分以内
建物写真
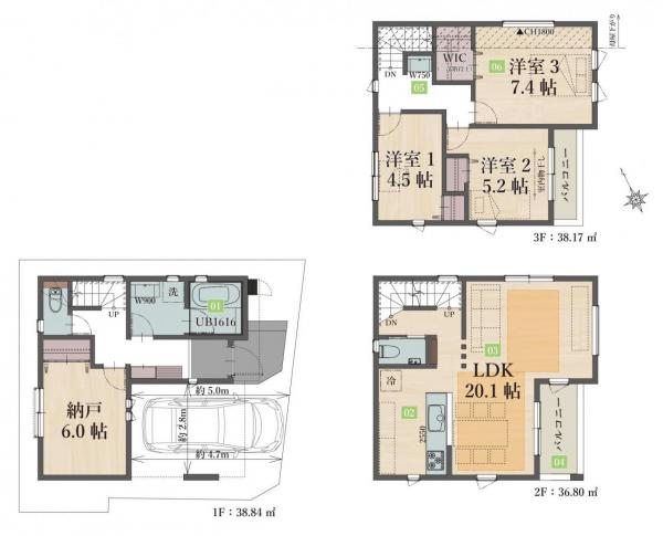
区画図・間取り図
設備仕様
周辺環境
会員専用の便利な機能
この物件のお支払例
頭金 0円
ボーナス払い 0円
価格
4,780万円
支払例(月々)
122,924円
- 上記支払合計に含まれない月額費用がある場合がございます。
- 上記支払例の借入条件:変動金利0.445%(2.03%優遇)、借入総額4,780万円、借入期間35年
- 三井住友信託銀行「家計応援プラン」ご利用の場合。「家計応援プラン」の詳細はコチラ
- 上記金利には一定の条件が必要になります。
勤務地からの交通機能
- ご登録された勤務地「五反田」駅まで
所要時間
1時間
(最寄JR南武線「小田栄」駅利用) - ご登録された勤務地「五反田」駅まで
所要時間
31分
(最寄JR京浜東北・根岸線「川崎」駅利用)
物件基本情報
- 所在地
- 川崎市幸区南加瀬3丁目
- 価格
- 5980 万円(税込)
- 交通
-
JR南武線「矢向」駅
バス停 南加瀬交番前 乗車13分 停歩5分
JR南武線「尻手」駅
バス停 南加瀬交番前 乗車16分 停歩4分 - 間取り
- 3SLDK
- 土地面積
- 64.49m2 (私道面積 1.25 m2 別)
- 建物面積
- 113.81m2(車庫面積10.95m2含)
- 築年月
- 2026/06
物件詳細情報
- 接道状況
-
南東側3.6m
- 構造規模
- 木造 地上3階建て
- 土地権利
- 所有権
- 建ぺい率
- 60%
- 容積率
- 160%
- 用途地域
- 第一種中高層住居専用
- 引渡し時期
- 2026/07 下旬
- 備考
- 準防火地域、高度地区、宅地造成工事規制区域、特定都市河川流域、景観計画区域
- 主たる設備
- 公営水道,本下水,都市ガス
- 設備
- トイレ2ヶ所,浴室乾燥機,システムキッチン,浄水器,ウォークインクローゼット,複層ガラス,床暖房
- 建築確認番号
- 第KBI-YKH25-10-3267号
- 駐車スペース
- 車庫
- 現況
- 未完成
- 情報公開日
- 2025/12/20
- 情報有効期限
- 2026/04/10
- 取引条件有効期限
- 2026/03/25
- 次回更新予定日
- 2026/03/25
- 取引形態
- 媒介
- 物件番号
- C0138102
現地案内図
閲覧履歴
人気物件ランキング
当社独占物件・店長おすすめ
現在 199 件
値下げ物件情報
現在 545 件
写真掲載が豊富な物件
現在 167 件



