システムキッチン 食器洗機 浄水器 浴室暖房乾燥機 バス1坪以上 洗浄便座 トイレ2ヶ所 バストイレ別 モニター付インターホン ダブルロックドア 宅配ボックス EV車充電設備 耐震構造 制震構造 高気密高断熱住宅 バルコニー 納戸 浴室に窓 独立洗面台 室内物干し Low-E複層ガラス 宅配ボックス L型対面キッチン LDK15帖以上 複数路線利用可 省エネ給湯器 エコジョーズ リビングイン階段 2面採光 駐車場(車種による)ワークスペース 前面道路6m以上
建物写真
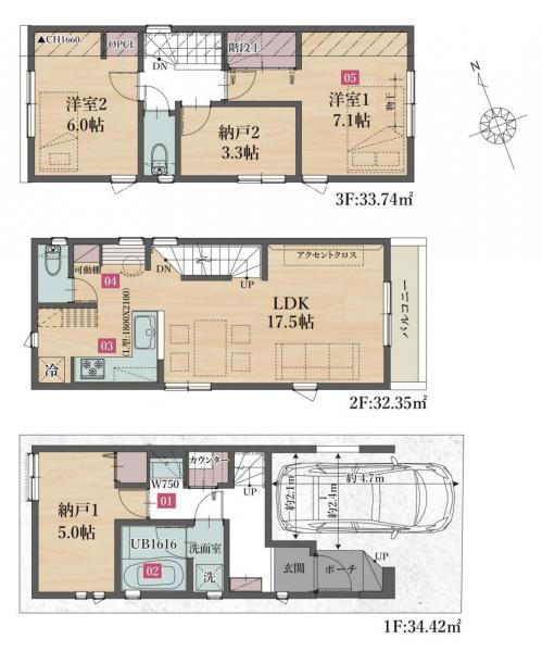
区画図・間取り図
設備仕様
周辺環境
会員専用の便利な機能
この物件のお支払例
頭金 0円
ボーナス払い 0円
価格
4,780万円
支払例(月々)
122,924円
- 上記支払合計に含まれない月額費用がある場合がございます。
- 上記支払例の借入条件:変動金利0.445%(2.03%優遇)、借入総額4,780万円、借入期間35年
- 三井住友信託銀行「家計応援プラン」ご利用の場合。「家計応援プラン」の詳細はコチラ
- 上記金利には一定の条件が必要になります。
勤務地からの交通機能
- ご登録された勤務地「五反田」駅まで
所要時間
1時間
(最寄JR南武線「小田栄」駅利用) - ご登録された勤務地「五反田」駅まで
所要時間
31分
(最寄JR京浜東北・根岸線「川崎」駅利用)
物件基本情報
- 所在地
- 川崎市高津区東野川1丁目
- 価格
- 4480 万円(税込)
- 交通
-
JR南武線「武蔵中原」駅
バス停 野川 乗車11分 停歩4分
横浜市営地下鉄グリーンライン「東山田」駅
バス停 野川くぬぎ坂 乗車9分 停歩3分 - 間取り
- 2SLDK
- 土地面積
- 49.23m2
- 建物面積
- 100.51m2(車庫面積11.85m2含)
- 築年月
- 2026/04
物件詳細情報
- 接道状況
-
東側6.0m
- 構造規模
- 木造 地上3階建て
- 土地権利
- 所有権
- 建ぺい率
- 60%
- 容積率
- 200%
- 用途地域
- 第一種中高層住居専用
- 引渡し時期
- 2026/05 下旬
- 備考
- 準防火地域、第2種高度地区、景観計画区域 約33.55平米は送電下に有り
- 建築確認番号
- 第KBI-YKH25-11-1069号
- 駐車スペース
- 車庫
- 現況
- 未完成
- 情報公開日
- 2025/11/20
- 情報有効期限
- 2026/05/14
- 取引条件有効期限
- 2026/04/28
- 次回更新予定日
- 2026/04/28
- 取引形態
- 媒介
- 物件番号
- B0137220



