ゲスト
即引渡可 陽当り良好 2沿線以上利用可 複数路線利用可 整形地 角地 平坦地 低層住居専用地域 対面式キッチン システムキッチン 給湯 パウダールーム 室内洗濯機置場 トイレ2ヶ所 全居室収納スペース ルーフバルコニー 全居室2面採光
建物写真
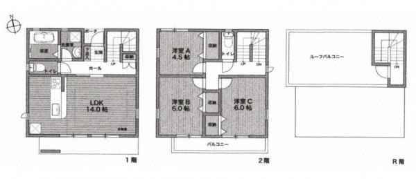
区画図・間取り図
周辺環境
会員専用の便利な機能
物件基本情報
- 所在地
- 横浜市緑区長津田みなみ台7丁目
- 価格
- 5980 万円(税込)
- 交通
-
東急田園都市線「長津田」駅 徒歩20分
JR横浜線「十日市場」駅 徒歩15分
- 間取り
- 3LDK
- 土地面積
- 201.90m2
- 建物面積
- 79.90m2
- 築年月
- 2015/02
物件詳細情報
- 接道状況
-
角地
南側4.5m
東側4.4m
- 構造規模
- 土地権利
- 所有権
- 建ぺい率
- 40%
- 容積率
- 80%
- 用途地域
- 第一種低層住居専用
- 引渡し時期
- 即
- 備考
- 第一種高度地区
- 主たる設備
- 公営水道,本下水,都市ガス
- 設備
- トイレ2ヶ所,システムキッチン,ルーフバルコニー
- 建築確認番号
- 駐車スペース
- 現況
- 完成済
- 情報公開日
- 2025/12/27
- 情報有効期限
- 2026/01/26
- 取引条件有効期限
- 2026/01/10
- 次回更新予定日
- 2026/01/10
- 取引形態
- 媒介
- 物件番号
- D0138320
現地案内図
閲覧履歴
人気物件ランキング
当社独占物件・店長おすすめ
現在 225 件
値下げ物件情報
現在 561 件
写真掲載が豊富な物件
現在 171 件
