ゲスト
建物面積に備蓄倉庫1.24平米を含む 平坦地 小学校徒歩10分以内 スーパー徒歩10分以内 駅まで平坦 対面式キッチン システムキッチン 浄水器 食器洗乾燥機 追焚き給湯 シャワー 浴室に窓 浴室乾燥機 バス1坪以上 トイレ2ヶ所 バストイレ別 温水洗浄便座 シャワー付き洗面化粧台 独立洗面台 全居室収納スペース 2面以上バルコニー 南面バルコニー TVインターホン 床暖房 火災警報器(報知機) LDK18帖以上 リビングイン階段 外水栓 外壁サイディング 3階建以上 土地50坪以上
建物写真
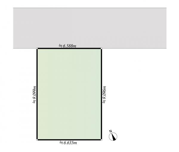
区画図・間取り図
設備仕様
周辺環境
会員専用の便利な機能
物件基本情報
- 所在地
- 川崎市川崎区桜本2丁目
- 価格
- 4600 万円(税無)
- 交通
-
京急大師線「川崎大師」駅 徒歩20分
JR京浜東北・根岸線「川崎」駅
バス停 池藤橋 乗車13分 停歩5分 - 間取り
- 4LDK
- 土地面積
- 60.21m2(セットバック:不要)
- 建物面積
- 108.05m2(車庫面積11.17m2含)
- 築年月
- 2019/06
物件詳細情報
- 接道状況
-
北側4.0m
- 構造規模
- 木造 地上3階建て
- 土地権利
- 所有権
- 建ぺい率
- 60%
- 容積率
- 160%
- 用途地域
- 第二種住居
- 引渡し時期
- 相談
- 備考
- 第3種高度地区 準防火地域
- 主たる設備
- 公営水道,本下水,都市ガス
- 設備
- トイレ2ヶ所,浴室乾燥機,システムキッチン,浄水器,洗髪洗面化粧台,床暖房
- 建築確認番号
- 駐車スペース
- カースペース
- 現況
- 完成済
- 情報公開日
- 2025/11/02
- 情報有効期限
- 2025/11/28
- 取引条件有効期限
- 2025/11/12
- 次回更新予定日
- 2025/11/12
- 取引形態
- 専任媒介
- 物件番号
- C0136464
現地案内図
閲覧履歴
人気物件ランキング
当社独占物件・店長おすすめ
現在 191 件
値下げ物件情報
現在 506 件
写真掲載が豊富な物件
現在 143 件

